Hallenbüro auf Stahlbau 4-seitig 6,50 x 3,50 m 22,75 m² (HS4-6535)

Art.Nr.: HS4-6535

EUR 22.148,00
zzgl. 19 % USt

  • Sofort versandfähig, ausreichende Stückzahl Sofort versandfähig, ausreichende Stückzahl
  • Lieferzeit 5-6 Wochen


Unsere Fachberater an der Hotline stehen Ihnen bei Fragen zu unseren Produkten gern zur Verfügung. Sie erreichen die Hotline zu unseren Geschäftszeiten unter 0571 / 50 54 5-25

Produktbeschreibung

Position

Menge

Bezeichnung

A
1 Stück

Hallenbüro auf Stahlbaubühne - becker.raumsysteme®

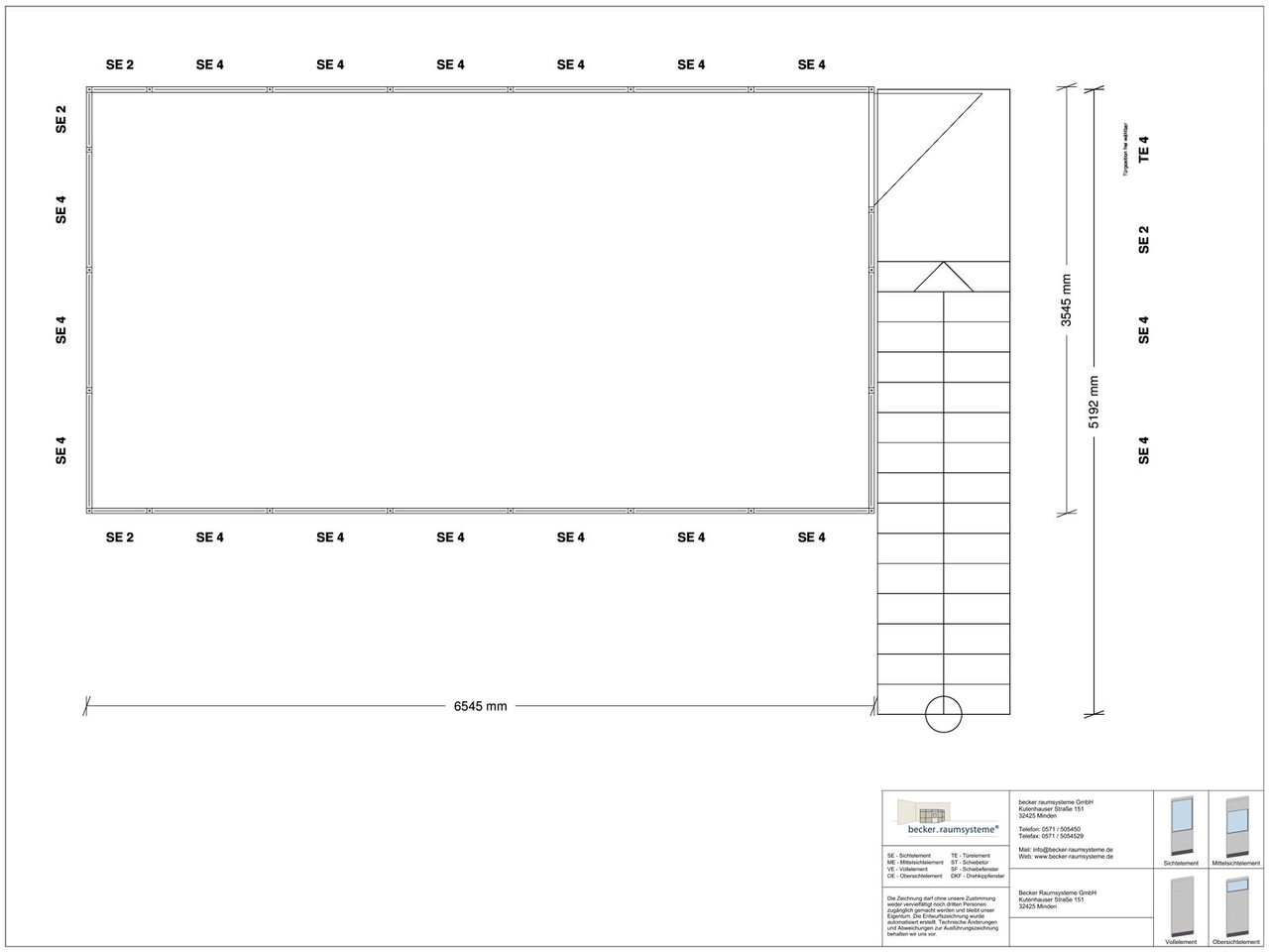
Bestehend aus Stahlbaubühne und Obergeschoss, Gesamthöhe der Anlage 5.527 mm,
Obergeschossausführung als Hallenbüro
4-seitig, Abmessung: L x T = 6.545 x 3.545 mm
Innenmaß: L x T = 6.455 x 3.455 mm
lichte Raumhöhe 2.510 mm, Aussenhöhe 2.679 mm

A.1.1
1 Stück

Stahlbaubühne - becker.raumsysteme®

Bühnenlänge: 6575 mm
Bühnenbreite: 3575 mm
Bühnenhöhe: 2810 mm
Bühnenfläche: ca. 25,17 m² einschl. Treppenpodest
Oberkante Bühnenbelag: 2850 mm
Anzahl Stützen: 6 Stk.

Ausführung:
Die Stahlbaubühne besteht aus Haupt- und Nebenträgern, stehend auf Stützen. Anzahl und Größe der Felder nach statischer Auslegung

A.1.1.1
1 Stück

Stahlkonstruktion für Stahlbaubühne

Träger und Stützen aus warmgewalzten Stahlprofilen, IPE / HEB Stahlträger lt. Auslegung

A.1.1.2
24.86 m²

Bühnenbelag, Spanplatte, P6, 38 mm, Oberflächen roh/roh

Verlegeplatte ohne Zuschnitt, Verlegung mit Nut und Feder, Der Stoß der Platten erfolgt immer auf einem Träger

A.1.1.3
24.86 m²

PVC-Fliesen, 608 x 608 x 2 mm, Farbe Anthrazit 1060

Komplett mit Kleber und Schweißdraht, antistatisch, Elastischer homogener PVC-Bodenbelag, einschichtig, richtungsorientiert, durchgehend marmoriert, Brandklasse B1, Nutzungsklasse 34 + 43, Beanspruchungsklasse K5

A.1.1.4
1 Stück

Treppenaufgang - becker.raumsysteme®

Anschluß über Treppenpodest an Stahlbaubühne, Podesthöhe wie vorbeschriebene Bühnenhöhe, Treppenausführung:
Treppenbreite: 1.090 mm einschl. Geländer
Treppenlaufbreite: 1.000 mm nutzbar
Treppenlänge: ca. 5.190 mm einschl. Treppenpodest
Treppenneigung: 36° gemäß ZH 1/113
(Richtlinien der Gewerblichen Berufsgenossenschaften)

Ausführung:
Stahlwangen mit beidseitigem Sicherheitsgeländer, Treppenpodest und Vorbereitung für Holztrittstufen

A.1.1.5

Holztrittstufen aus Mehrschichtplatte Sieb/Film

Für Treppenlaufbreite 1.000 mm, 300 mm tief, rutschhemmend, Kanten gefasst und grundiert, einschl. Befestigungsmittel

A.1.1.6

Hinweise zur angebotenen Stahlbaubühne

Eine prüffähige Statik gehört nicht zum Angebotsumfang. Wir werden Ihnen jedoch eine solche gegen gesonderte Berechnung erstellen.

Die Überprüfung nach Eignung und Festigkeit der vorhandenen Bodenplatte erfolgt bauseits. Fußbodengenauigkeiten nach DIN 18202, Tabelle 3, Zeile 3 werden vorausgesetzt.

Anprallasten nach DIN 1055 wurden nicht berücksichtigt. Zur Erledigung der Montagearbeiten ist bauseits ein Gabelstapler mit ausreichender Tragkraft und Hubhöhe zu stellen

A.1.2
1 Stück

Hallenbüro auf Stahlbaubühne - becker.raumsysteme®

Materialbedarf Hallenbüro:

A.1.2.1
17 Stück

Sichtelement, Raster 4 - 1.000 x 2.550 mm

Ab Brüstungshöhe 1.090 mm verglast, in Floatglas 5 mm dick

A.1.2.2
4 Stück

Sichtelement, Raster 2 - 500 x 2.550 mm

Ab Brüstungshöhe 1.090 mm verglast, in Floatglas 5 mm dick

A.1.2.3
1 Stück

Tür-Sichtelement, Raster 4 - 1.000 x 2.550 mm

Türflügel mit Glasausschnitt, lichte Öffnung 813 x 1.984 mm, inkl. Metalltürblatt, Türzarge, Drückergarnitur,
vorgerichtet für Profilzylinder (35 / 30 = 65 mm Länge),
DIN-Anschlag nach Absprache

A.1.2.4
23.2 m²

Mineralfaserakustikdecke

Abgehängtes System, Struktur Fresko, Rastermaß 625 x 625 mm, einschl. Abhängematerial und Tragekonstruktion, einschl. Abdeckung mit Spanplatte, P5, 19 mm, Ausführung nicht begehbar

Lieferung / Montage / Elektrischer Anschluß

Die Lieferung der Hallenbüros erfolgt als Bausatz in Einzelteilen. Die Lieferkosten innerhalb Deutschland (Festland) sind frei Bordsteinkante im Preis enthalten. Das Abladen der Einzelteile auf Paletten erfolgt bauseits. Die Montage durch erfahrene Fachmonteure vor Ort erfolgt gegen Aufpreis. Elektroinstallationen gehören nicht zum Montageumfang. Die Einrichtungsgegenstände auf den Bildern gehören nicht zum Lieferumfang.

Produktinformation

Das Hallenbüro auf Stahlbau HS4-6535 bietet Ihnen eine innovative Lösung, um Ihre Arbeitsumgebung optimal zu gestalten. Mit seinen kompakten Abmessungen von 6,5 x 3,5 m und einer großzügigen lichte Raumhöhe von 2.510 mm schafft es einen hellen und einladenden Raum, der sowohl Effizienz als auch Komfort fördert. Durch die modulare Bauweise passt sich dieses Büro flexibel an Ihre individuellen Bedürfnisse an und ermöglicht es Ihnen, Veränderungen in Ihrer Produktionsumgebung schnell und unkompliziert umzusetzen.

Stellen Sie sich vor, wie Ihre Mitarbeiter in einem modernen, lichtdurchfluteten Raum arbeiten - ganz ohne Ablenkungen aus der Halle. Das Hallenbüro auf Stahlbau HS4-6535 ist nicht nur funktional, sondern auch ästhetisch ansprechend. Der Türflügel mit Glasausschnitt sorgt für eine offene Atmosphäre und verbessert die Kommunikation zwischen den Arbeitsbereichen.

Ein herausragendes Verkaufsargument ist die Robustheit des Hallenbüro auf Stahlbaus. Gefertigt aus hochwertigen Materialien und ausgestattet mit einem stabilen Metalltürblatt sowie einer langlebigen Türzarge, garantiert es eine lange Lebensdauer selbst unter industriellen Bedingungen. Die präzise Verarbeitung und die durchdachte Konstruktion sorgen dafür, dass das Büro nicht nur Ihren Anforderungen gerecht wird, sondern auch höchsten Qualitätsansprüchen genügt. Mit einem Maß von 6.545 x 3.545 und einer Außenhöhe von 2.677 mm bietet das Hallenbüro auf Stahlbau ausreichend Platz für einen Schreibtisch und weitere Büromöbel. Es eignet sich ideal für Einsatzbereiche wie Lagerhaltung oder Produktion, wo eine klare Trennung zwischen Büro und Werkstatt erforderlich ist.

Vertrauen Sie auf über 25 Jahre Erfahrung von Becker Raumsysteme im Bereich modularer Lösungen. Unsere Produkte sind "Made in Germany" und stehen für Qualität und Langlebigkeit. Bei Fragen oder zur Planung Ihres individuellen Projekts stehen wir Ihnen jederzeit gerne zur Verfügung.

Nutzen Sie jetzt die Gelegenheit, Ihr Arbeitsumfeld zu optimieren - kontaktieren Sie uns noch heute für weitere Informationen zum Hallenbüro auf Stahlbau HS4-6535! Zusätzlich zu seiner Funktionalität bietet das Hallenbüro auf Stahlbau HS4-6535 auch Möglichkeiten zur individuellen Gestaltung, die Ihnen helfen, eine inspirierende Arbeitsatmosphäre zu schaffen. Die Auswahl an Oberflächen und Farben ermöglicht es Ihnen, das Büro optimal an Ihre Unternehmensidentität anzupassen. Ob in modernen Grautönen oder mit akzentuierten Farbflächen - der visuelle Eindruck kann gezielt beeinflusst werden, um das Wohlbefinden Ihrer Mitarbeiter zu fördern. Darüber hinaus bietet das modulare System die Möglichkeit, Sichtelemente einzufügen, die nicht nur visuelle Abtrennungen schaffen, sondern auch zur Verbesserung der Akustik beitragen. Dank der integrierten Mineralfaserakustikdecke wird Lärm effektiv absorbiert, was ein konzen­triertes Arbeiten unterstützt. Lassen Sie Ihre Produktionsumgebung effizienter und ansprechender gestalten - mit dem Hallenbüro auf Stahlbau HS4-6535 von Becker Raumsysteme, Ihrer Wahl für nachhaltige und flexible Raumlösungen.

Zusätzlich zur herausragenden Funktionalität des Hallenbüro auf Stahlbaus HS4-6535 profitieren Sie von der einfachen Montage und den geringen Wartungskosten, die es zu einer wirtschaftlichen Wahl für jedes Unternehmen machen. Die modulare Bauweise ermöglicht eine schnelle und unkomplizierte Installation, sodass Sie ohne längere Ausfallzeiten Ihre neue Arbeitsumgebung nutzen können. Dank der robusten Materialien, die für ihre Langlebigkeit bekannt sind, sparen Sie langfristig Zeit und Ressourcen, da weniger häufige Reparaturen oder Erneuerungen erforderlich sind. Außerdem bietet das Hallenbüro auf Stahlbau die Möglichkeit zur einfachen Anpassung an zukünftige Veränderungen im Betrieb, wodurch es zu einem nachhaltigen Bestandteil Ihrer Unternehmensinfrastruktur wird. Die nahtlose Integration in bestehende Raumkonzepte wird durch das vielseitige Design unterstützt, das sowohl funktionale als auch ästhetische Aspekte berücksichtigt, und hilft Ihnen, ein inspirierendes Arbeitsumfeld zu schaffen, das die Produktivität Ihrer Mitarbeiter fördert.