Hallenbüro auf Stahlbau 4-seitig 6,00 x 4,00 m 24 m² (HS4-6040)

Art.Nr.: HS4-6040

EUR 20.411,00
zzgl. 19 % USt

  • Sofort versandfähig, ausreichende Stückzahl Sofort versandfähig, ausreichende Stückzahl
  • Lieferzeit 5-6 Wochen


Unsere Fachberater an der Hotline stehen Ihnen bei Fragen zu unseren Produkten gern zur Verfügung. Sie erreichen die Hotline zu unseren Geschäftszeiten unter 0571 / 50 54 5-25

Produktbeschreibung

Position

Menge

Bezeichnung

A
1 Stück

Hallenbüro auf Stahlbaubühne - becker.raumsysteme®

Bestehend aus Stahlbaubühne und Obergeschoss, Gesamthöhe der Anlage 5.527 mm,
Obergeschossausführung als Hallenbüro
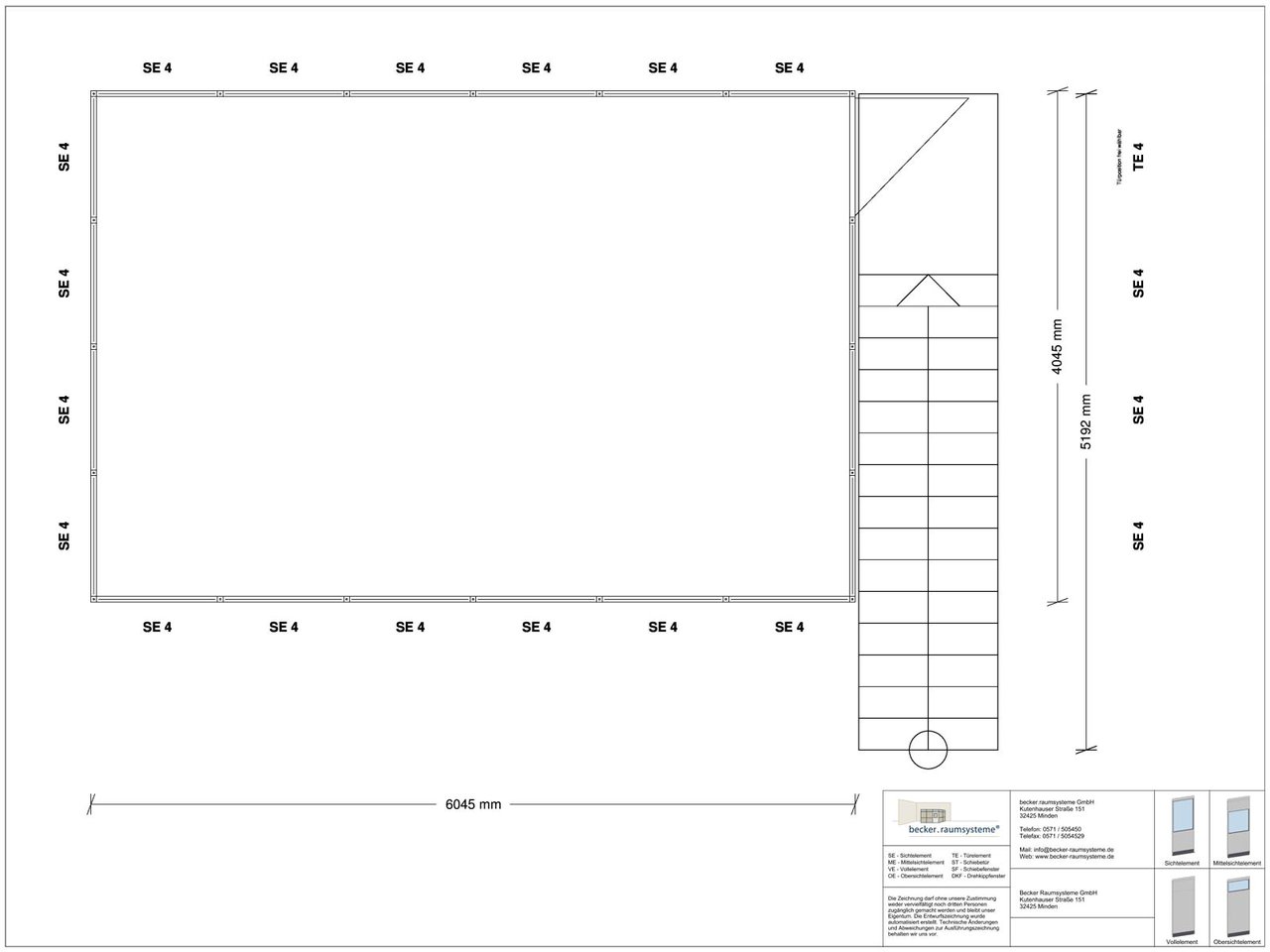
4-seitig, Abmessung: L x T = 6.045 x 4.045 mm
Innenmaß: L x T = 5.955 x 3.955 mm
lichte Raumhöhe 2.510 mm, Aussenhöhe 2.679 mm

A.1.1
1 Stück

Stahlbaubühne - becker.raumsysteme®

Bühnenlänge: 6075 mm
Bühnenbreite: 4075 mm
Bühnenhöhe: 2810 mm
Bühnenfläche: ca. 26,42 m² einschl. Treppenpodest
Oberkante Bühnenbelag: 2850 mm
Anzahl Stützen: 4 Stk.

Ausführung:
Die Stahlbaubühne besteht aus Haupt- und Nebenträgern, stehend auf Stützen. Anzahl und Größe der Felder nach statischer Auslegung

A.1.1.1
1 Stück

Stahlkonstruktion für Stahlbaubühne

Träger und Stützen aus warmgewalzten Stahlprofilen, IPE / HEB Stahlträger lt. Auslegung

A.1.1.2
26.11 m²

Bühnenbelag, Spanplatte, P6, 38 mm, Oberflächen roh/roh

Verlegeplatte ohne Zuschnitt, Verlegung mit Nut und Feder, Der Stoß der Platten erfolgt immer auf einem Träger

A.1.1.3
26.11 m²

PVC-Fliesen, 608 x 608 x 2 mm, Farbe Anthrazit 1060

Komplett mit Kleber und Schweißdraht, antistatisch, Elastischer homogener PVC-Bodenbelag, einschichtig, richtungsorientiert, durchgehend marmoriert, Brandklasse B1, Nutzungsklasse 34 + 43, Beanspruchungsklasse K5

A.1.1.4
1 Stück

Treppenaufgang - becker.raumsysteme®

Anschluß über Treppenpodest an Stahlbaubühne, Podesthöhe wie vorbeschriebene Bühnenhöhe, Treppenausführung:
Treppenbreite: 1.090 mm einschl. Geländer
Treppenlaufbreite: 1.000 mm nutzbar
Treppenlänge: ca. 5.190 mm einschl. Treppenpodest
Treppenneigung: 36° gemäß ZH 1/113
(Richtlinien der Gewerblichen Berufsgenossenschaften)

Ausführung:
Stahlwangen mit beidseitigem Sicherheitsgeländer, Treppenpodest und Vorbereitung für Holztrittstufen

A.1.1.5

Holztrittstufen aus Mehrschichtplatte Sieb/Film

Für Treppenlaufbreite 1.000 mm, 300 mm tief, rutschhemmend, Kanten gefasst und grundiert, einschl. Befestigungsmittel

A.1.1.6

Hinweise zur angebotenen Stahlbaubühne

Eine prüffähige Statik gehört nicht zum Angebotsumfang. Wir werden Ihnen jedoch eine solche gegen gesonderte Berechnung erstellen.

Die Überprüfung nach Eignung und Festigkeit der vorhandenen Bodenplatte erfolgt bauseits. Fußbodengenauigkeiten nach DIN 18202, Tabelle 3, Zeile 3 werden vorausgesetzt.

Anprallasten nach DIN 1055 wurden nicht berücksichtigt. Zur Erledigung der Montagearbeiten ist bauseits ein Gabelstapler mit ausreichender Tragkraft und Hubhöhe zu stellen

A.1.2
1 Stück

Hallenbüro auf Stahlbaubühne - becker.raumsysteme®

Materialbedarf Hallenbüro:

A.1.2.1
19 Stück

Sichtelement, Raster 4 - 1.000 x 2.550 mm

Ab Brüstungshöhe 1.090 mm verglast in, Floatglas 5 mm dick

A.1.2.2
1 Stück

Tür-Sichtelement, Raster 4 - 1.000 x 2.550 mm

Türflügel mit Glasausschnitt, lichte Öffnung 813 x 1.984 mm, inkl. Metalltürblatt, Türzarge, Drückergarnitur,
vorgerichtet für Profilzylinder (35 / 30 = 65 mm Länge),
DIN-Anschlag nach Absprache

A.1.2.3
24.45 m²

Mineralfaserakustikdecke

Abgehängtes System, Struktur Fresko, Rastermaß 625 x 625 mm, einschl. Abhängematerial und Tragekonstruktion, einschl. Abdeckung mit Spanplatte, P5, 19 mm, Ausführung nicht begehbar

Lieferung / Montage / Elektrischer Anschluß

Die Lieferung der Hallenbüros erfolgt als Bausatz in Einzelteilen. Die Lieferkosten innerhalb Deutschland (Festland) sind frei Bordsteinkante im Preis enthalten. Das Abladen der Einzelteile auf Paletten erfolgt bauseits. Die Montage durch erfahrene Fachmonteure vor Ort erfolgt gegen Aufpreis. Elektroinstallationen gehören nicht zum Montageumfang. Die Einrichtungsgegenstände auf den Bildern gehören nicht zum Lieferumfang.

Produktinformation

Das Hallenbüro auf Stahlbau HS4-6040 » 6.045 x 4.045 mm

Das Hallenbüro auf Stahlbau HS4-6040 bietet Ihnen eine hervorragende Lösung, um Ihre Arbeitsumgebung effizienter zu gestalten. Mit einer Grundfläche von 24 m² und den kompakten Abmessungen von 6.045 x 4.045 mm passt dieses modulare Büro ideal in verschiedene industrielle Umgebungen. Es ermöglicht Ihnen, einen separaten und ruhigen Arbeitsbereich innerhalb Ihrer Halle zu schaffen, der sowohl Konzentration als auch Produktivität fördert. Der Nutzen für Sie liegt auf der Hand: Durch die Schaffung eines geschützten Raumes können Sie Ablenkungen minimieren und Ihre Arbeitsabläufe optimieren.

Stellen Sie sich vor, wie angenehm es ist, in einem hellen, modernen Büro zu arbeiten, das speziell auf Ihre Bedürfnisse zugeschnitten ist. Das Hallenbüro auf Stahlbau HS4-6040 bietet nicht nur einen funktionalen Raum, sondern auch ein angenehmes Arbeitsklima, das Ihre Mitarbeiter motiviert und ihre Kreativität anregt. Die emotionale Ansprache wird durch die Möglichkeit verstärkt, einen persönlichen Rückzugsort innerhalb der Betriebsstätte zu schaffen - ein Ort, an dem Ideen geboren und Projekte erfolgreich umgesetzt werden können.

Einzigartig an diesem Hallenbüro auf Stahlbau ist die flexible Modularität, die es Ihnen ermöglicht, das Büro jederzeit an veränderte Anforderungen anzupassen. Die robuste Bauweise aus pulverbeschichteten Stahlteilen garantiert Langlebigkeit und Widerstandsfähigkeit gegen die Herausforderungen des industriellen Alltags. Darüber hinaus sorgt die lichte Raumhöhe von 2,510 mm für ein angenehmes Raumgefühl. Mit einer Außenhöhe von 2,677 mm fügt sich das Büro harmonisch in die bestehende Hallenstruktur ein und maximiert gleichzeitig den verfügbaren Platz.

Die Anwendungsbeispiele für das Hallenbüro auf Stahlbau HS4-6040 sind vielfältig. Ob als Besprechungsraum, Arbeitsplatz für Projektteams oder als Rückzugsort für konzentriertes Arbeiten - dieses modulare Büro erfüllt zahlreiche Anforderungen in der Industrie. Es ist perfekt geeignet für Produktionsbetriebe und Lagerhallen, in denen effizientes Arbeiten im Vordergrund steht. Vertrauen Sie auf über 25 Jahre Erfahrung von Becker Raumsysteme GmbH in der Bereitstellung robuster und flexibler Lösungen für industrielle Anwendungen. Unsere Produkte stehen für Qualität und Zuverlässigkeit. Bei Fragen oder individuellen Anpassungen stehen unsere Fachberater Ihnen jederzeit gerne zur Verfügung.

Nutzen Sie die Gelegenheit und gestalten Sie Ihre Arbeitsumgebung neu mit dem Hallenbüro auf Stahlbau HS4-6040. Kontaktieren Sie uns noch heute für weitere Informationen oder um Ihr individuelles Angebot zu erhalten! Mit der integrierten Akustiklösungen können Sie zusätzlich eine angenehme Geräuschkulisse schaffen, die die Konzentration noch weiter fördert. Das Hallenbüro auf Stahlbau HS4-6040 ist nicht nur funktional, sondern trägt auch aktiv zur Verbesserung des Arbeitsumfeldes bei. Diese sorgfältig durchdachten Details machen das Büro zu einem optimalen Ort für kreative Zusammenarbeit und innovative Entwicklungen. Dank der flexiblen Nutzungsmöglichkeiten kann es leicht an spezielle Anforderungen und Teamgrößen angepasst werden, wodurch es sich perfekt in dynamische Arbeitsprozesse integriert. Investieren Sie in die Zukunft Ihres Unternehmens und fördern Sie durch die Gestaltung eines modernen, effizienten Arbeitsplatzes das Wohlbefinden Ihrer Mitarbeiter. Berücksichtigen Sie dabei auch die Möglichkeit einer individuellen Farb- und Materialwahl, um das Büroumfeld nicht nur praktisch, sondern auch visuell ansprechend zu gestalten. Damit setzen Sie nicht nur auf Funktionalität, sondern auch auf eine ansprechende Ästhetik, die motiviert und inspiriert.

Vorteile des Hallenbüro auf Stahlbau HS4-6040

Die Wandelemente des modularen Baukastensystems RS 45 zeichnen sich durch ihre Vielseitigkeit und Anpassungsfähigkeit aus. Eine bemerkenswerte Eigenschaft dieser Elemente ist die Möglichkeit der einfachen Demontage und der Austauschbarkeit einzelner Bauteile. Dieser Aspekt ermöglicht eine flexible Anpassung an sich ändernde Anforderungen innerhalb industrieller Arbeitsumgebungen.

Die austauschbaren Einzelteile umfassen verschiedene Glas- und Wandkomponenten, die es ermöglichen, die Raumsysteme individuell zu gestalten. So können beispielsweise Sichtelemente mit unterschiedlichen Glasvarianten bestückt werden, um den Lichteinfall und die Transparenz den spezifischen Bedürfnissen anzupassen. Darüber hinaus können diese Einzelteile problemlos ausgewechselt werden, was den Erhalt und die Modernisierung der Raumsysteme erleichtert.

Ein weiteres herausragendes Merkmal dieser Wandelemente ist ihre Kompatibilität mit anderen Modulen des Systems RS 45. Dies erlaubt es Unternehmen, bestehende Lösungen nahtlos zu erweitern oder neu zu konfigurieren, ohne dabei die gesamte Struktur verändern zu müssen. Dadurch wird nicht nur die Lebensdauer der Rauminstallationen verlängert, sondern auch wirtschaftliche und ökologische Vorteile erzielt, indem Ressourcen geschont werden.

Dank dieser innovativen Gestaltungsmöglichkeiten bieten die Wandelemente des Systems RS 45 eine zukunftssichere Lösung für Produktionsbetriebe und Lagerstätten, die Wert auf Effizienz und Flexibilität legen. Bei Fragen zu den Einsatzmöglichkeiten der Wandelemente und deren Anpassung bietet Becker Raumsysteme kompetente Fachberatung und Unterstützung an.